Бортовой КМУ Inman IT 200 с буром и люлькой с ДУ на шасси КАМАЗ 43118-3027-50
- Производитель КМУ
- Инман
- Грузоподъемность КМУ
- 7200 кг
- Вылет стрелы
- 18.90 м
- Колесная формула
- 6х6
- Модель шасси
- КАМАЗ-43118
- Грузовой момент
- 20.20 тм
- Глубина бурения
- 4.50 м
Более 300 единиц техники в наличии
Официальная гарантия завода
Доставка во все регионы РФ
Собственное производство автомобилей с КМУ
- Производитель шасси
- КАМАЗ
- Производитель КМУ
- Инман
- Тип техники
- Бурильно-крановый автомобиль
- Тип КМУ
- Тросовый
- Грузоподъемность КМУ
- 7200 кг
- Вылет стрелы
- 18.90 м
- Колесная формула
- 6х6
- Мощность
- 300 л.с.
- Длина
- 10260 мм
- Ширина
- 2550 мм
- Модель шасси
- КАМАЗ-43118
- Грузовой момент
- 20.20 тм
- Тип стрелы
- L-образная
- Глубина бурения
- 4.50 м
- Диаметр бурения
- 350 мм
- Кол-во секций
- 2
- Угол поворота КМУ
- 400
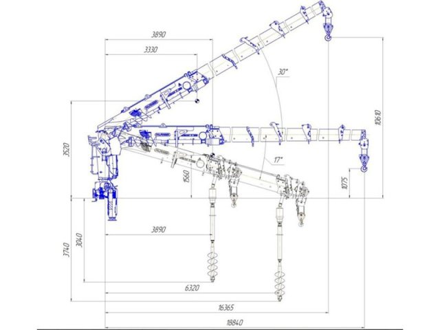
Бортовой КМУ Inman IT 200 с буром и люлькой с ДУ на шасси КАМАЗ 43118-3027-50 предназначен как для выполнения погрузочных, строительно-монтажных работ, так и бурения скважин, выкопки ям (ямобур), погружения материалов и оборудования. При этом, манипулятор имеет 2 секции стрелы, что обеспечивает большую рабочую зону перемещения груза (длина стрелы: 18,9 м). Стоимость установки дополнительного оборудования и опций, условия доставки в Москве можно уточнить по телефону +7 (499) 229-12-34.
Технические характеристики шасси КАМАЗ 43118-3027-50
| Базовое шасси | КАМАЗ-43118-3027-50 |
| Колёсная формула | 6х6 |
| Двигатель | КАМАЗ-740.705-300 |
| Мощность двигателя, кВт (л.с.) | 221 (300) |
| КПП | 154 |
| ТСУ | крюк-петля |
| Максимальная скорость, км/ч | 80 |
| Масса перевозимого груза, кг | 5750 |
| Масса автомобиля, кг | 21290 |
| - на переднюю ось, кг | 5290 |
| - на заднюю тележку, кг | 16000 |
| Масса буксируемого прицепа, кг | 12000 |
| Масса автопоезда, кг | 33290 |
| Габаритные размеры | |
| Длина, мм | 10260 |
| Ширина, мм | 2550 |
| Высота, мм | 4000 |
| Внутренние размеры | |
| Длина, мм | 6112 |
| Ширина, мм | 2470 |
| Высота, мм | 730 |
Технические характеристики КМУ Palfinger IT 200
| Грузовой момент, т·м | 20.2 |
| Грузоподъемность макс., кг | 7200 |
| Грузоподъемность на макс. вылете, кг | 400 |
| Вылет макс., м | 18,9 |
| Вылет мин., м | 2,5 |
Еще нет ни одного отзыва, вы можете быть первым!
- Производитель КМУ
- Инман
- Грузоподъемность КМУ
- 7200 кг
- Вылет стрелы
- 18.90 м
- Колесная формула
- 6х6
- Модель шасси
- КАМАЗ-43118
- Грузовой момент
- 20.20 тм
- Глубина бурения
- 3 м
- Производитель КМУ
- Инман
- Грузоподъемность КМУ
- 7200 кг
- Вылет стрелы
- 18.90 м
- Колесная формула
- 6х6
- Модель шасси
- КАМАЗ-43118
- Грузовой момент
- 20.20 тм
- Глубина бурения
- 3 м
- Производитель КМУ
- Инман
- Грузоподъемность КМУ
- 7200 кг
- Вылет стрелы
- 18.90 м
- Колесная формула
- 6х6
- Модель шасси
- КАМАЗ-43118
- Грузовой момент
- 20.20 тм
- Глубина бурения
- 3 м
- Производитель КМУ
- Инман
- Грузоподъемность КМУ
- 7200 кг
- Вылет стрелы
- 18.90 м
- Колесная формула
- 6х6
- Модель шасси
- КАМАЗ-43118
- Грузовой момент
- 20.20 тм
- Глубина бурения
- 3 м
- Производитель КМУ
- Инман
- Грузоподъемность КМУ
- 7200 кг
- Вылет стрелы
- 18.90 м
- Колесная формула
- 6х6
- Модель шасси
- КАМАЗ-43118
- Грузовой момент
- 20.20 тм
- Глубина бурения
- 4.50 м
- Производитель КМУ
- Инман
- Грузоподъемность КМУ
- 7200 кг
- Вылет стрелы
- 18.90 м
- Колесная формула
- 6х6
- Модель шасси
- КАМАЗ-43118
- Грузовой момент
- 20.20 тм
- Глубина бурения
- 4.50 м
- Производитель КМУ
- Инман
- Грузоподъемность КМУ
- 7200 кг
- Вылет стрелы
- 18.90 м
- Колесная формула
- 6х6
- Модель шасси
- Урал-NEXT 4320
- Грузовой момент
- 20.20 тм
- Глубина бурения
- 4.50 м
- Производитель КМУ
- Инман
- Грузоподъемность КМУ
- 7200 кг
- Вылет стрелы
- 18.90 м
- Колесная формула
- 6х6
- Модель шасси
- КАМАЗ-43118
- Грузовой момент
- 20.20 тм
- Глубина бурения
- 4.50 м
Задайте их нашему менеджеру и получите ответ в течение 10 минут


















