Бортовой КМУ ИНМАН ИТ-200 c люлькой на шасси КАМАЗ 43118-73094-50
- Производитель КМУ
- Инман
- Грузоподъемность КМУ
- 7200 кг
- Вылет стрелы
- 18.90 м
- Колесная формула
- 6х6
- Модель шасси
- КАМАЗ-43118
- Грузовой момент
- 20.20 тм
- Глубина бурения
- 4.50 м
Более 300 единиц техники в наличии
Официальная гарантия завода
Доставка во все регионы РФ
Собственное производство автомобилей с КМУ
- Производитель шасси
- КАМАЗ
- Производитель КМУ
- Инман
- Тип техники
- Бурильно-крановый автомобиль
- Тип КМУ
- Тросовый
- Грузоподъемность КМУ
- 7200 кг
- Вылет стрелы
- 18.90 м
- Колесная формула
- 6х6
- Мощность
- 300 л.с.
- Длина
- 10260 мм
- Ширина
- 2550 мм
- Модель шасси
- КАМАЗ-43118
- Грузовой момент
- 20.20 тм
- Тип стрелы
- L-образная
- Глубина бурения
- 4.50 м
- Диаметр бурения
- 350 мм
- Кол-во секций
- 2
- Угол поворота КМУ
- 400
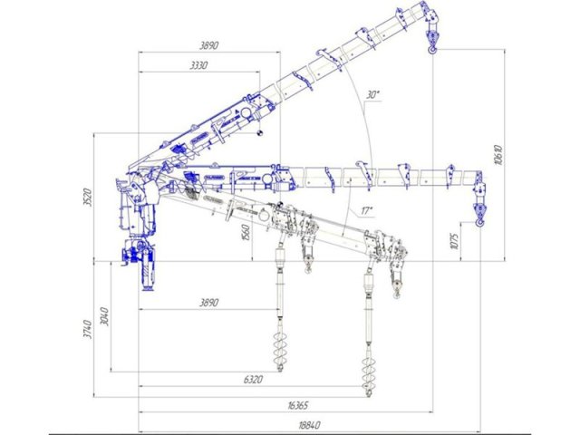
Бортовой КАМАЗ 43118-73094-50 с КМУ ИНМАН ИТ-200 c люлькой предназначен как для выполнения погрузочных, строительно-монтажных работ, так и бурения скважин, выкопки ям (ямобур), погружения материалов и оборудования. При этом, манипулятор имеет 2 секции стрелы, что обеспечивает большую рабочую зону перемещения груза (длина стрелы: 18,9 м). Стоимость установки дополнительного оборудования и опций, условия доставки в Москве можно уточнить по телефону +7 (499) 229-12-34.
Технические характеристики шасси КАМАЗ 43118
| Базовое шасси | КАМАЗ-43118-73094-50 |
| Колёсная формула | 6х6 |
Технические характеристики КМУ ИНМАН ИТ-200
| Грузовой момент, т·м | 20.2 |
| Грузоподъемность макс., кг | 7200 |
| Грузоподъемность на макс. вылете, кг | 400 |
| Вылет макс., м | 18,9 |
| Вылет мин., м | 2,5 |
Еще нет ни одного отзыва, вы можете быть первым!
- Производитель КМУ
- Инман
- Грузоподъемность КМУ
- 7200 кг
- Вылет стрелы
- 18.90 м
- Колесная формула
- 6х6
- Модель шасси
- КАМАЗ-43118
- Грузовой момент
- 20.20 тм
- Глубина бурения
- 3 м
- Производитель КМУ
- Инман
- Грузоподъемность КМУ
- 7200 кг
- Вылет стрелы
- 18.90 м
- Колесная формула
- 6х6
- Модель шасси
- КАМАЗ-43118
- Грузовой момент
- 20.20 тм
- Глубина бурения
- 3 м
- Производитель КМУ
- Инман
- Грузоподъемность КМУ
- 7200 кг
- Вылет стрелы
- 18.90 м
- Колесная формула
- 6х6
- Модель шасси
- КАМАЗ-43118
- Грузовой момент
- 20.20 тм
- Глубина бурения
- 3 м
- Производитель КМУ
- Инман
- Грузоподъемность КМУ
- 7200 кг
- Вылет стрелы
- 18.90 м
- Колесная формула
- 6х6
- Модель шасси
- КАМАЗ-43118
- Грузовой момент
- 20.20 тм
- Глубина бурения
- 3 м
- Производитель КМУ
- Инман
- Грузоподъемность КМУ
- 7200 кг
- Вылет стрелы
- 18.90 м
- Колесная формула
- 6х6
- Модель шасси
- КАМАЗ-43118
- Грузовой момент
- 20.20 тм
- Глубина бурения
- 4.50 м
- Производитель КМУ
- Инман
- Грузоподъемность КМУ
- 7200 кг
- Вылет стрелы
- 18.90 м
- Колесная формула
- 6х6
- Модель шасси
- КАМАЗ-43118
- Грузовой момент
- 20.20 тм
- Глубина бурения
- 4.50 м
- Производитель КМУ
- Инман
- Грузоподъемность КМУ
- 7200 кг
- Вылет стрелы
- 18.90 м
- Колесная формула
- 6х6
- Модель шасси
- КАМАЗ-43118
- Грузовой момент
- 20.20 тм
- Глубина бурения
- 4.50 м
- Производитель КМУ
- Инман
- Грузоподъемность КМУ
- 7200 кг
- Вылет стрелы
- 18.90 м
- Колесная формула
- 6х6
- Модель шасси
- Урал-NEXT 4320
- Грузовой момент
- 20.20 тм
- Глубина бурения
- 4.50 м
Задайте их нашему менеджеру и получите ответ в течение 10 минут


















