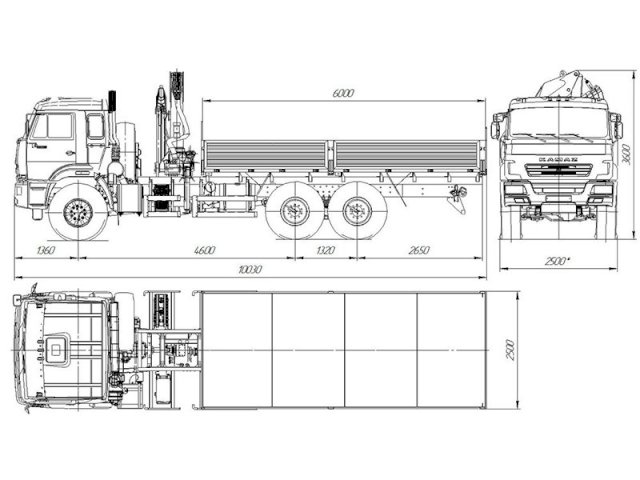
Бортовой КАМАЗ-43118-3027-50 с КМУ АНТ 12-2 (11)
- Производитель КМУ
- АНТ
- Грузоподъемность КМУ
- 6000 кг
- Вылет стрелы
- 8.40 м
- Колесная формула
- 6х6
- Модель шасси
- КАМАЗ-43118
- Грузовой момент
- 12 тм
Более 300 единиц техники в наличии
Официальная гарантия завода
Доставка во все регионы РФ
Собственное производство автомобилей с КМУ
- Производитель шасси
- КАМАЗ
- Производитель КМУ
- АНТ
- Тип техники
- Бортовой автомобиль
- Тип КМУ
- Гидравлический
- Грузоподъемность КМУ
- 6000 кг
- Вылет стрелы
- 8.40 м
- Колесная формула
- 6х6
- Мощность
- 300 л.с.
- Длина
- 10030 мм
- Ширина
- 2500 мм
- Модель шасси
- КАМАЗ-43118
- Грузовой момент
- 12 тм
- Тип стрелы
- Z-образная
- Кол-во секций
- 2
- Угол поворота КМУ
- 390
Бортовой КАМАЗ-43118-3027-50 с КМУ АНТ 12-2 (11) подходит для погрузки и перевозки грузов, строй материалов, а также для выполнения монтажных работ. Техника способна перенести груз через ограждение (за забор), опустить груз ниже уровня земли (грузоподъемность: 6000 кг; вылет стрелы: 8,4 м). Первоначальный взнос по программе лизинга - всего 15%. Сроки и условия доставки в Москве можно уточнить по телефону +7 (499) 229-12-34.
Технические характеристики шасси КАМАЗ 43118-3027-50
| Двигатель | КАМАЗ 740.705-300 |
| Тип двигателя | Дизельный с турбонаддувом и системой обработки отработавших газов |
| Количество и расположение цилиндров | 8, V-образное |
| Рабочий объём цилиндров, см3 | 11762 |
| Степень сжатия | 18 |
| Максимальная мощность, кВт | 221 (300 л.с.) |
| Максимальный крутящий момент, Н*м | 1275 |
| Топливо | Дизельное |
| Модель КМУ | АНТ 12-2, гидравлический |
| Управление | 2 пульта управления справа и слева у основания КМУ |
| Установка КМУ | За кабиной |
| Максимальная грузоподъемность | 6 тонн |
| Максимальный вылет стрелы | 8,4 м |
| Грузоподъемность на максимальном вылете стрелы | 1,3 тонн |
| Характеристики бортовой платформы | |
| Описание | Металлическая платформа с рифлеными бортами |
| Открывающиеся борта | Боковые, задний |
| Инструменты | домкрат балонный ключ запасное колесо ЗИП |
| Держатель запасного колеса | За кабиной |
| Средства безопасности | |
| Огнетушитель | 1 шт. |
| Аптечка медицинская | 1 шт. |
| Знак аварийной остановки | 1 шт. |
| Противооткатные упоры | 2 шт. |
| Боковое защитное устройство | Наличие |
| Заднее защитное устройство | Наличие |
Технические характеристики КМУ АНТ 12-2
| Количество гидравлических выдвижных секций, шт. | 2 |
| Грузовой момент, тм | 12,00 |
| Максимальная грузоподъемность, кг | 6 000 |
| Грузоподъемность на максимальном вылете, кг | 1 320 |
| Максимальный вылет стрелы, м | 8,40 |
| Рабочая температура окружающей среды, °C | -40…+40 |
| Максимальная высота подъема, м | 10,50 |
| Максимальная глубина опускания, м | 6,00 |
| Способ управления | Гидравлический |
| Угол поворота колонны, град. | 390 |
| Место управления | С земли |
| Транспортное положение опор | Вниз |
| Тип выдвижных опор | Механические |
| Стандартная база опор, мм | 3 700 |
| База опор с увеличенным вылетом, мм | 5 400 |
| Масса без гидронасоса, рабочей жидкости, кг | 2 120 |
| Емкость гидробака, л (полная / max / min) | 135 / 125 / 116 |
| Производительность насоса, л/мин | 32 |
| Рабочее давление, МПа | 28 |
| Размер по осям шпилек, мм | 720 |
| Монтажная база, мм | 960 |
| Габаритные размеры в транспортном положении, мм | 2 480 х 865 х 2235 |
Еще нет ни одного отзыва, вы можете быть первым!
- Производитель КМУ
- АНТ
- Грузоподъемность КМУ
- 6000 кг
- Вылет стрелы
- 8.40 м
- Колесная формула
- 6х6
- Модель шасси
- FAW CA 3250
- Грузовой момент
- 12 тм
- Производитель КМУ
- АНТ
- Грузоподъемность КМУ
- 6000 кг
- Вылет стрелы
- 8.40 м
- Колесная формула
- 6х6
- Модель шасси
- УРАЛ-4320
- Грузовой момент
- 12 тм
- Производитель КМУ
- АНТ
- Грузоподъемность КМУ
- 6000 кг
- Вылет стрелы
- 8.40 м
- Колесная формула
- 6х6
- Модель шасси
- УРАЛ-4320
- Грузовой момент
- 12 тм
- Производитель КМУ
- АНТ
- Грузоподъемность КМУ
- 6000 кг
- Вылет стрелы
- 8.40 м
- Колесная формула
- 6х6
- Модель шасси
- FAW CA 3250
- Грузовой момент
- 12 тм
- Производитель КМУ
- АНТ
- Грузоподъемность КМУ
- 6000 кг
- Вылет стрелы
- 8.40 м
- Колесная формула
- 6х6
- Модель шасси
- УРАЛ-4320
- Грузовой момент
- 12 тм
- Производитель КМУ
- АНТ
- Грузоподъемность КМУ
- 6000 кг
- Вылет стрелы
- 8.40 м
- Колесная формула
- 6х6
- Модель шасси
- УРАЛ-4320
- Грузовой момент
- 12 тм
- Производитель КМУ
- АНТ
- Грузоподъемность КМУ
- 6000 кг
- Вылет стрелы
- 8.40 м
- Колесная формула
- 6х6
- Модель шасси
- УРАЛ-4320
- Грузовой момент
- 12 тм
- Производитель КМУ
- АНТ
- Грузоподъемность КМУ
- 6000 кг
- Вылет стрелы
- 8.40 м
- Колесная формула
- 6х6
- Модель шасси
- FAW CA 3250
- Грузовой момент
- 12 тм
Задайте их нашему менеджеру и получите ответ в течение 10 минут













